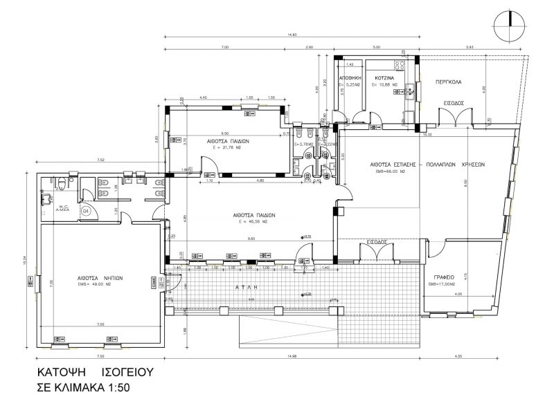
Ο Δήμαρχος Λέρου κ. Μιχάλη Κόλιας, ανακοινώνει με μεγάλη χαρά και ικανοποίηση ότι εγκρίθηκε η χρηματοδότηση από την ΕΕΤΑΑ Α.Ε του Δημοτικού Οργανισμού Παιδικών Σταθμών – Αθλητισμού – Πολιτισμού (ΔΟΠΑΙΣΑΠ), για την κτιριακή αναβάθμιση – επέκταση του Παιδικού Σταθμού Καμάρας.
Πιο συγκεκριμένα, η ΕΕΤΑΑ ΑΕ ενέκρινε τη χρηματοδότηση ύψους 50.000,00 ευρώ για την δημιουργία νέου τμήματος στον Παιδικό Σταθμό Καμάρας, δυναμικότητας έως 25 νηπίων, ενώ παράλληλα θα αναβαθμιστεί και θα επεκταθεί ολόκληρο το κτήριο, με νέους μεγαλύτερους χώρους (νέα αίθουσα για τα νήπια, επέκταση τραπεζαρίας, επέκταση κουζίνας, νέος αποθηκευτικός χώρος, νέα αίθουσα προσωπικού, νέα WC, WC-ΑΜΕΑ, κλπ).
Η μελέτη του έργου χρηματοδοτείται από τον Δήμο Λέρου, ενώ αξίζει να σημειωθεί ότι στο υφιστάμενο κτήριο που στεγάζεται ο Παιδικός Σταθμός Καμάρας θα προστεθούν συνολικά επιπλέον 152 τετραγωνικά μέτρα, ενώ ο προϋπολογισμός του έργου αναμένεται να ξεπεράσει οριακά τις 150.000,00 ευρώ.
Ελπίζουμε, ότι σχετικά σύντομα, τα παιδιά μας θα έχουν έναν αξιοζήλευτο, ουσιαστικά νέο Παιδικό Σταθμό που θα παρέχει ακόμα καλύτερες υπηρεσίες, κάνοντάς μας όλους υπερήφανους.
Ο Δήμαρχος Λέρου κ. Μιχάλης Κόλιας εκφράζει τις θερμές του ευχαριστίες στον Διευθύνων Σύμβουλο για την Ε.Ε.Τ.Α.Α. Α.Ε κ. Σπυρίδων Σπυρίδων, στην Πρόεδρο του ΔΟΠΑΙΣΑΠ κα Μαριέττα Κανάρη, στον Αντιδήμαρχο και υπεύθυνο των Παιδικών Σταθμών κ. Άκη Γρεκό καθώς και στο προσωπικό του Δήμου και του ΔΟΠΑΙΣΑΠ για τη σημαντική αυτή εξέλιξη.






![Λέρος: Η Περιφορά του επιταφίου στο Νοσοκομείο [VIDEO]](https://admin.lerosnews.gr/wp-content/uploads/2026/04/20260410_184153-120x86.webp)
